Объект

Брестская область, Брестский район, Подлесье-Радваничское, Московская
Тип объявления Продажа
Категория объекта дом
Количество комнат 1
Код объекта 07726
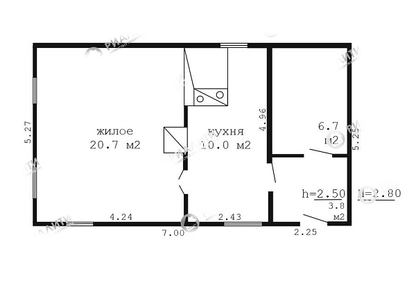
Общая площадь 41.2 м2
Этажность 1
Площадь участка 11 сот.
Санузел совмещенный
Удобства Водопровод, Канализация, Отопление
 

Мы работаем от собственника! Покупая этот объект, Вы не платите агентству комиссию! В продаже деревянный дом в деревне Подлесье Радваничское. Площадь дома 41,2 кв.м, одна жилая комната 20.7 кв.м, кухня 10 кв.м. Дом расположен на участке размером 11 соток. На территории участка также расположены беседка, колодец, фруктовый сад и хоз. постройки. В доме печное отопление, также есть котел на дровах на горячую воду. По коммуникациям: канализация местная, вода местная, электричество есть. Рядом находится лес и река Рита. В деревню три  раза в день ходит городской автобус
Код объекта 07726
Договор №077/2 от 30.03.2026.
Лицензия №02240/269 выдана МЮ РБ от 21 марта 2014 года.

Похожие предложения

Выгодные предложения - ловите момент!

Ваш персональный менеджер

Если у вас появились вопросы, напишите нам!