Код объекта 07826: Поможем с кредитованием, семейным капиталом, продажей Вашей недвижимости для покупки этой!
Мы работаем от собственника! Покупая этот объект, ПОКУПАТЕЛЬ не платит агентству комиссию!
Продаётся добротный четырёхкомнатный дом- бунгало в одном из тихих районов Бреста- Гершонах.
Фундамент дома - плитный/ монолитная плита.
Стены из газо-силикатных блоков, дополнительно утеплены в системе Термошуба и отделаны декоративно-защитной камешковой штукатуркой.
Отличная стропильная система, надёжная австрийская фальцевая кровля монтировалась в 2023году.
Окна ПВХ. Входная дверь металлическая.
В наличии все инженерные коммуникации : Электроснабжение 220 В.
Газ в доме, отопление- газовый котёл. Водяные тёплые полы под плиткой. Радиаторы отопления в спальнях.
Центральная вода. Дополнительно- скважина/ гидрофор. Канализация автономная.
Интернет и телефонизация от Белтелеком. Охранная сигнализация с тревожной кнопкой.
Функциональная планировка дома в одном уровне с перспективой использования мансардного этажа.
Просторная кухня с выходом в зал. Три изолированных спальни. Встроенные системы хранения. Раздельный санузел с ванной и душевой. Котельная с современным оборудованием.
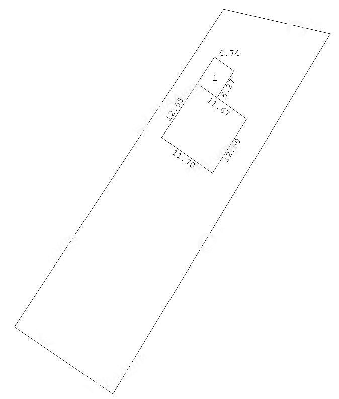
Большой участок прямоугольной формы 14,7 соток на праве пожизненно наследуемого владения.
По периметру ограждение выполнено забором из профнастила. Тротуарная плитка. Откатные ворота на въезде. Декоративные деревья и кустарники, цветущие растения, газон.
Район Гершоны обеспечен хорошей транспортной развязкой. Остановки общественного транспорта в двух направлениях в шаговой доступности от дома. Отличная инфраструктура района.
Код объекта 07826, лот 07826.
Договор № 078/2 от 30.03.2026г.
Мы работаем от собственника! Покупая этот объект, ПОКУПАТЕЛЬ не платит агентству комиссию!
Продаётся добротный четырёхкомнатный дом- бунгало в одном из тихих районов Бреста- Гершонах.
Фундамент дома - плитный/ монолитная плита.
Стены из газо-силикатных блоков, дополнительно утеплены в системе Термошуба и отделаны декоративно-защитной камешковой штукатуркой.
Отличная стропильная система, надёжная австрийская фальцевая кровля монтировалась в 2023году.
Окна ПВХ. Входная дверь металлическая.
В наличии все инженерные коммуникации : Электроснабжение 220 В.
Газ в доме, отопление- газовый котёл. Водяные тёплые полы под плиткой. Радиаторы отопления в спальнях.
Центральная вода. Дополнительно- скважина/ гидрофор. Канализация автономная.
Интернет и телефонизация от Белтелеком. Охранная сигнализация с тревожной кнопкой.
Функциональная планировка дома в одном уровне с перспективой использования мансардного этажа.
Просторная кухня с выходом в зал. Три изолированных спальни. Встроенные системы хранения. Раздельный санузел с ванной и душевой. Котельная с современным оборудованием.
Большой участок прямоугольной формы 14,7 соток на праве пожизненно наследуемого владения.
По периметру ограждение выполнено забором из профнастила. Тротуарная плитка. Откатные ворота на въезде. Декоративные деревья и кустарники, цветущие растения, газон.
Район Гершоны обеспечен хорошей транспортной развязкой. Остановки общественного транспорта в двух направлениях в шаговой доступности от дома. Отличная инфраструктура района.
Код объекта 07826, лот 07826.
Договор № 078/2 от 30.03.2026г.