Код объекта 03526: Мы работаем от собственника! Покупая этот объект, ПОКУПАТЕЛЬ не платит агентству комиссию!
В продаже добротный кирпичный дом в одном из любимых тихих уголков Бреста-Вересковых,
Фундамент дома - фундаментные блоки ФБС.
Стены- кирпич, / кладка 55 см толщиной/, дополнительно утеплены и отделаны снаружи.
Отличная стропильная система, надёжная многоскатная фальцевая кровля из жести. Окна ПВХ .
Все инженерные коммуникации - центральные. Электроснабжение 220 /380 В.
Газ в доме, новая сантехника, отопление и полипропилен, газовый котел с высоким КПД.
Центральная вода и канализация. Высокоскоростной оптоволоконный интернет.
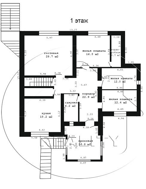
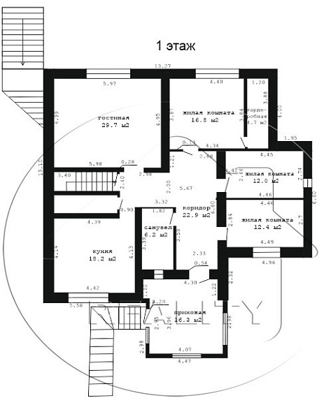
Функциональная планировка дома. Большая кухня. Просторная спальня с отдельной гардеробной. Две детские. Достроена летняя закрытая терраса.
Евроремонт на первом жилом этаже. Плитка керамогранит и ламинат на полах. Натяжные потолки. Обои на стенах.
В цокольном этаже гараж 37 м2., в гараже вода и отдельная ванная комната с санузлом. Подвальные помещения высокие и удобные, разведено отопление.
Второй этаж дома- под отделку, с возможностью выполнить ее на свой вкус.
Два въезда, отдельный вход на второй этаж, возможно разделить участок и дом поквартирно.
Большой участок на праве частной собственности. По периметру ограждение выполнено высоким бетонным забором. Участок правильной формы, засеян газонной травой. Разбит молодой сад.
Район Плоска обеспечен хорошей транспортной развязкой. Остановка общественного транспорта в 50м от дома в двух направлениях.
Около полукилометра до ближайшего магазина. Недалеко мини- рынок и гипермаркеты и вся городская инфраструктура.
Зеленый район в окружении смешанных лесных массивов, в отсутствии промышленных предприятий.
Код объекта 03526, лот 03526.
Договор № 035/2 от 13.02.2026г.
В продаже добротный кирпичный дом в одном из любимых тихих уголков Бреста-Вересковых,
Фундамент дома - фундаментные блоки ФБС.
Стены- кирпич, / кладка 55 см толщиной/, дополнительно утеплены и отделаны снаружи.
Отличная стропильная система, надёжная многоскатная фальцевая кровля из жести. Окна ПВХ .
Все инженерные коммуникации - центральные. Электроснабжение 220 /380 В.
Газ в доме, новая сантехника, отопление и полипропилен, газовый котел с высоким КПД.
Центральная вода и канализация. Высокоскоростной оптоволоконный интернет.
Функциональная планировка дома. Большая кухня. Просторная спальня с отдельной гардеробной. Две детские. Достроена летняя закрытая терраса.
Евроремонт на первом жилом этаже. Плитка керамогранит и ламинат на полах. Натяжные потолки. Обои на стенах.
В цокольном этаже гараж 37 м2., в гараже вода и отдельная ванная комната с санузлом. Подвальные помещения высокие и удобные, разведено отопление.
Второй этаж дома- под отделку, с возможностью выполнить ее на свой вкус.
Два въезда, отдельный вход на второй этаж, возможно разделить участок и дом поквартирно.
Большой участок на праве частной собственности. По периметру ограждение выполнено высоким бетонным забором. Участок правильной формы, засеян газонной травой. Разбит молодой сад.
Район Плоска обеспечен хорошей транспортной развязкой. Остановка общественного транспорта в 50м от дома в двух направлениях.
Около полукилометра до ближайшего магазина. Недалеко мини- рынок и гипермаркеты и вся городская инфраструктура.
Зеленый район в окружении смешанных лесных массивов, в отсутствии промышленных предприятий.
Код объекта 03526, лот 03526.
Договор № 035/2 от 13.02.2026г.