Продам Незавершенное законсервированное капитальное строение Брестская обл., г. Дрогичин, ул. Луцкевича, 14, площадь 307 кв.м., в том числе дом 225 кв.м., хоз. постройка 82 кв.м., назначение – Здание жилого дома, наименование – НЗКС, (проектировалось как гостиница), расположено на земельном участке площадь 0,1435 га, право пожизненного наследуемого владения, правильной формы, огорожен сеткой, удобный подъезд.
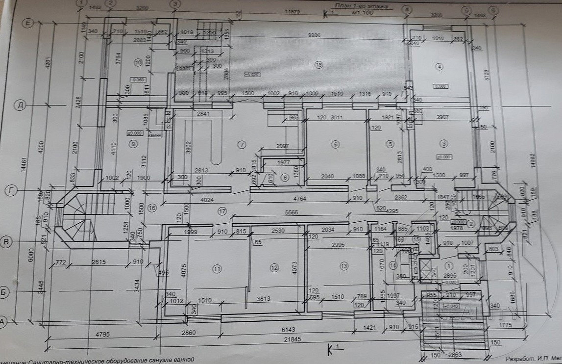
Прочие характеристики: общая площадь застройки 307 кв.м., в том числе основное здание 225 кв.м. готовность 45% (размеры 21х14 м., смотрите фото), хоз. постройка 82 кв.м. (можно проживать), фундамент монолитный бетон, стены наружные – блок силикатный, внутренние – кирпич, полы – черновые, монолитный пояс на уровне 2-го этажа, частично перекрытие – ж/б плиты, кровля на хоз. помещении –металлочерепица, электрика на участке (3 фазы), водопровод центральный, разведен по дому с канализацией (местная), газ рядом с участком, ; два этажа
Стоимость 30000 дол. (себестоимость), ТОРГ.
Договор №324/2 от 28.07.2022 года, лот.
Лицензия №02240/269 выдана МЮ РБ от 21 марта 2014 года.
УНП: 291267309.
+375333990772 (Viber,Telegram,WhatsApp), эл. почта: anreal002@mail.ru
https://reality.by/predlozhenija/kommercheskaya-nedvizhimost/
Прочие характеристики: общая площадь застройки 307 кв.м., в том числе основное здание 225 кв.м. готовность 45% (размеры 21х14 м., смотрите фото), хоз. постройка 82 кв.м. (можно проживать), фундамент монолитный бетон, стены наружные – блок силикатный, внутренние – кирпич, полы – черновые, монолитный пояс на уровне 2-го этажа, частично перекрытие – ж/б плиты, кровля на хоз. помещении –металлочерепица, электрика на участке (3 фазы), водопровод центральный, разведен по дому с канализацией (местная), газ рядом с участком, ; два этажа
Стоимость 30000 дол. (себестоимость), ТОРГ.
Договор №324/2 от 28.07.2022 года, лот.
Лицензия №02240/269 выдана МЮ РБ от 21 марта 2014 года.
УНП: 291267309.
+375333990772 (Viber,Telegram,WhatsApp), эл. почта: anreal002@mail.ru
https://reality.by/predlozhenija/kommercheskaya-nedvizhimost/