Код объекта : 25824: Мы работаем от собственника! Покупая этот объект Вы не платите агентству комиссию!
Предлагаем жилой дом в элитном районе Бреста- Красном дворе с идеально развитой инфраструктурой.
Железобетонные фундаментные блоки, плиты перекрытий создают цокольный этаж строения. Здесь расположены гараж и помещения хозяйственно-бытового назначения. Стены дома из газо-силикатного блока. Утеплены и отделаны силикатным кирпичом. Кровля- металлочерепица. Окна- деревянные. Второй этаж дома подготовлен под чистовую отделку.
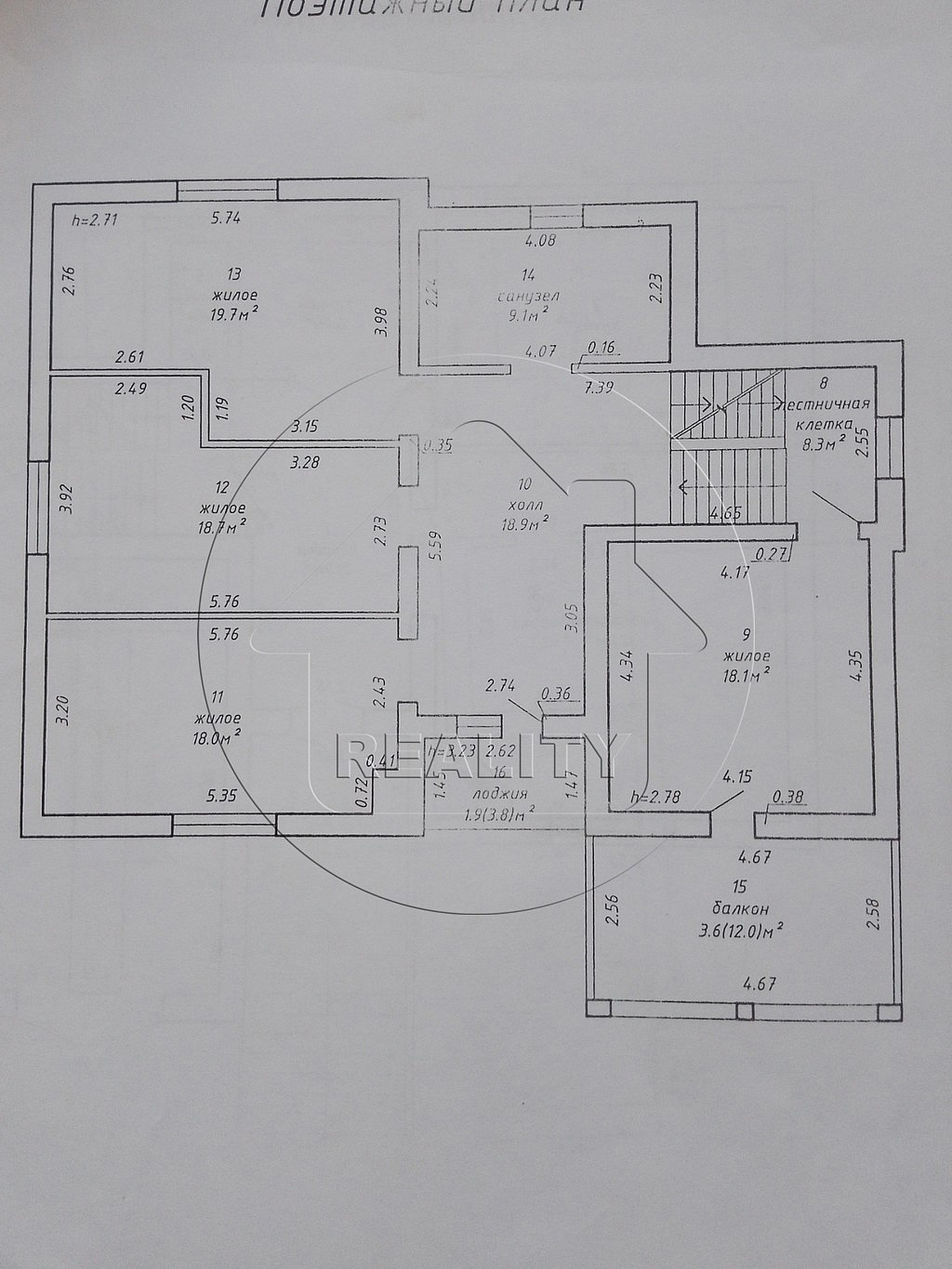
Площадь всех уровней объекта- от цоколя до жилой мансарды /по СНБ/- 332 кв.м, общая площадь жилых помещений дома-214,6 кв.м, жилая-107 кв.м, кухня-21,9 кв.м.
В доме просторные жилые комнаты, имеется несколько санузлов. Аккуратное состояние помещений. На полах- ламинат. Качественные межкомнатные двери актуального дизайна. Керамическая плитка в санузлах и кладовой.
Центральные инженерные коммуникации: электричество 380В-3 фазы, газ, канализация и водоснабжение - всё централизованное. Отопление- 2 контурный газовый котел с турбиной Ferroli. Оптоволоконный высокоскоростной интернет от Белтелеком.
Земельный участок 10,76 сотки в частной собственности. Ухожен, огорожен, произрастает газон, декоративные хвойники,
молодой фруктовый сад. 2 гаража с высокими гаражными воротами на въезде и смотровой ямой.
Широкий подъезд к дому, статусные соседи.
Удобная транспортная развязка, возможность быстро попасть в любой район города. Изобилие, непосредственная близость всех необходимых объектов инфраструктуры: множество различных магазинов, школ, детских садов, аптек, отделений банков и остановок общественного транспорта.
Код объекта 25824, Договор 258/2 от 24.09.2024г.
Лицензия №02240/269 выдана МЮ РБ от 21 марта 2014 года.
Предлагаем жилой дом в элитном районе Бреста- Красном дворе с идеально развитой инфраструктурой.
Железобетонные фундаментные блоки, плиты перекрытий создают цокольный этаж строения. Здесь расположены гараж и помещения хозяйственно-бытового назначения. Стены дома из газо-силикатного блока. Утеплены и отделаны силикатным кирпичом. Кровля- металлочерепица. Окна- деревянные. Второй этаж дома подготовлен под чистовую отделку.
Площадь всех уровней объекта- от цоколя до жилой мансарды /по СНБ/- 332 кв.м, общая площадь жилых помещений дома-214,6 кв.м, жилая-107 кв.м, кухня-21,9 кв.м.
В доме просторные жилые комнаты, имеется несколько санузлов. Аккуратное состояние помещений. На полах- ламинат. Качественные межкомнатные двери актуального дизайна. Керамическая плитка в санузлах и кладовой.
Центральные инженерные коммуникации: электричество 380В-3 фазы, газ, канализация и водоснабжение - всё централизованное. Отопление- 2 контурный газовый котел с турбиной Ferroli. Оптоволоконный высокоскоростной интернет от Белтелеком.
Земельный участок 10,76 сотки в частной собственности. Ухожен, огорожен, произрастает газон, декоративные хвойники,
молодой фруктовый сад. 2 гаража с высокими гаражными воротами на въезде и смотровой ямой.
Широкий подъезд к дому, статусные соседи.
Удобная транспортная развязка, возможность быстро попасть в любой район города. Изобилие, непосредственная близость всех необходимых объектов инфраструктуры: множество различных магазинов, школ, детских садов, аптек, отделений банков и остановок общественного транспорта.
Код объекта 25824, Договор 258/2 от 24.09.2024г.
Лицензия №02240/269 выдана МЮ РБ от 21 марта 2014 года.