Объект

Брестская область, Брестский район, Брест, Гершоны, Засима
Тип объявления Продажа
Категория объекта дом
Район Гершоны
Код объекта 49523
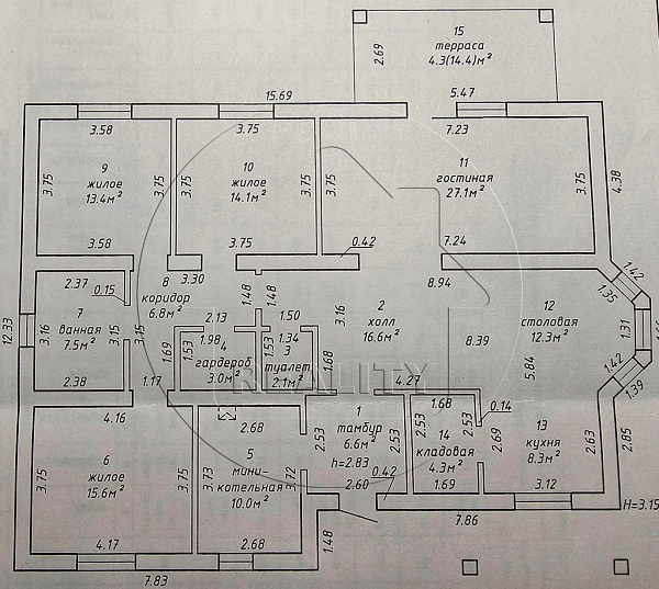
Общая площадь 152 м2
Этажность 1
Площадь участка 10.93 сот.
Удобства Водопровод, Газ, Канализация, Отопление
 

Предлагаем купить качественный жилой дом под чистовую отделку, со всеми коммуникациями, в экологически чистом районе Бреста, расположенном возле границы с РП. Материал стен - экологичные блоки из ячеистого бетона Забудова (40 см), фундамент монолит 50 см под облицовку кирпичом, плиты перекрытия, сверху утеплены пенопластом (20 см) и закрыты стяжкой. Опорные столбы выполнены из клинкерного кирпича Roben ручной фармовки.  Двери с доводчиком Gerda, оконный профиль KBE 8 см с тройным остеклением, фурнитура ROTO. Выход c гостиной на террасу оборудован сдвижкой Roto Patio Alversa. Отопление котел BOSCH, подогрев воды бойлер BOSCH, проложена утепленная теплотрасса в хоз блок, в том числе горячая и холодная вода. В гостиной проложены под штукатурку провода для акустической системы, На окна изготовлены москитные сетки . Хозблок состоит из гаража с навесом, бани, открытой кухни, бетонного монолитного погреба с кладовкой. Установлены двери Gerda tt plus. Черепица Roben Bergamo Антрацит на доме и хоз. блоке В санузлах установлены инсталляции TECE для унитаза  (2 шт,) и для биде  (1 шт). Земельный участое 11 соток. При строительстве использовались только качественные материалы с высоким качеством работ. Код объекта 49523. Договор № 495/2 от 29.11.2023. Лицензия №02240/269 выдана МЮ РБ от 21 марта 2014 года. Звоните! Будем рады ответить на все ваши вопросы.

Похожие предложения

Выгодные предложения - ловите момент!

Ваш персональный менеджер

Если у вас появились вопросы, напишите нам!