Покупая этот объект, Покупатель не платит агентству комиссию! Продаётся дом для комфортной жизни в центре с мебелью г.Жабинка.
Дом расположен в отличном районе, в шаговой доступности все необходимое, асфальтированная дорога, школы, садики, транспорт, магазины и многое другое. Тихое, уютное место в центре города с большим участком, гаражом и с отзывчивыми и добрыми соседями.
Дом продается в связи с переездом.
Характеристики дома:
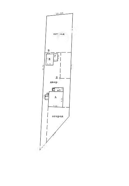
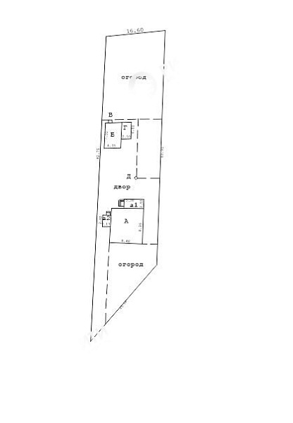
общая площадь — 54,1кв.м, жилая составляет 36,9кв.м., 3 жилые комнаты на 1 этаже и 2 на втором, кухня-8,3 кв.м , совмещённый санузел, терраса на втором этаже открывает красивый вид, в доме есть хороший погреб.
Отделка и оснащение: потолки — побелка, полы — деревянные, двери — деревянные, стены окрашены, поклеены обоями, окна-двойные деревянные, дом теплый.
Мебель и техника: кухонный гарнитур остаётся новым владельцам, остаётся другая мебель
Участок — 0,1408 га, большой, есть теплица, гараж, подсобные помещения и дополнительно уличный туалет.
Участок полностью огорожен забором, рабицей.
Коммуникации:
все необходимые коммуникации центральные, канализация в том числе.
Это идеальное место для комфортного проживания семьи в доме в самом центре города.
Код объекта 050/26
Договор № 050/2 от 27.02.2026г.
Лицензия №02240/269 выдана МЮ РБ от 21 марта 2014 года
Дом расположен в отличном районе, в шаговой доступности все необходимое, асфальтированная дорога, школы, садики, транспорт, магазины и многое другое. Тихое, уютное место в центре города с большим участком, гаражом и с отзывчивыми и добрыми соседями.
Дом продается в связи с переездом.
Характеристики дома:
общая площадь — 54,1кв.м, жилая составляет 36,9кв.м., 3 жилые комнаты на 1 этаже и 2 на втором, кухня-8,3 кв.м , совмещённый санузел, терраса на втором этаже открывает красивый вид, в доме есть хороший погреб.
Отделка и оснащение: потолки — побелка, полы — деревянные, двери — деревянные, стены окрашены, поклеены обоями, окна-двойные деревянные, дом теплый.
Мебель и техника: кухонный гарнитур остаётся новым владельцам, остаётся другая мебель
Участок — 0,1408 га, большой, есть теплица, гараж, подсобные помещения и дополнительно уличный туалет.
Участок полностью огорожен забором, рабицей.
Коммуникации:
все необходимые коммуникации центральные, канализация в том числе.
Это идеальное место для комфортного проживания семьи в доме в самом центре города.
Код объекта 050/26
Договор № 050/2 от 27.02.2026г.
Лицензия №02240/269 выдана МЮ РБ от 21 марта 2014 года