Код объекта 11125: Покупая этот объект- Вы не платите агентству комиссию! Поможем с кредитованием, семейным капиталом, продажей Вашей недвижимости для покупки этой!
Жилой дом в нескольких минутах езды по М-1 и в 3 км от границы города Бреста. Современный коттеджный посёлок с необходимой инфраструктурой и близостью живописной природы.
На земельном участке 10 соток /в частной собственности/ расположен жилой дом 2008 года постройки.
Бунгало на ленточном монолитном фундаменте с полноценным цокольным этажом. Стены из газо-силикатных блоков "Забудова" отличного качества, толщиной 400мм, утеплены в системе Термошуба с нанесением декоративно-защитной отделочной штукатурки Короед. Окрашены стойкой к УФО и атмосферным воздействиям фасадной краской. Плиты перекрытий между цокольным и жилым этажом. Усиленные балки перекрытий и мощная стропильная система под кровлей из натуральной цементно-песчаной черепицы "Забудова". Эффектная шатровая кровля с врезкой. Окна ПВХ.
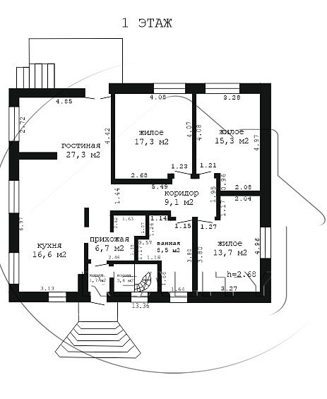
Лаконичная функциональная планировка дома. Кухня с переходом в зону отдыха - зал и выходом на террасу во внутренний дворик и на зелёную лужайку. Три просторные изолированные спальни. Совмещенный санузел с ванной и душкабиной. Качественные импортные отделочные материалы и современные технологии строительства: итальянская плитка, "венецианка", двери из массива, и много других "изюминок".
Возможность дополнительного обустройства мансардного этажа /утеплён,звукоизолирован/. В нижнем уровне достаточно места для размещения сауны, бассейна, комнаты отдыха и бильярдной.
Общая площадь строения с цокольным этажом 196,4 м2 / площадь жилого помещения дома 117,8 м2 / жилая 73,6 м2 / площадь кухни 14,6 м2.
Центральные инженерные коммуникации: электроснабжение 220/380 В, газ - в доме, отопление- двухконтурный газовый котёл "Виссманн", система водяных теплых полов в кухне, санузле и прихожей. Отапливаемый /при необходимости/ цокольный этаж. Скважина питьевой воды,/гидрофор. По улице - центральная вода. Автономная канализация с отличной дренажной системой. Центральная канализация по улице. Высокоскоростной оптоволоконный интернет от Белтелеком.
У дома беседка с местом для отдыха. Гараж на две машины с подъёмными воротами на электроприводе и хозблок- просторное помещение для хранения хозинвентаря- выполнены в общем стиле усадьбы.
Красивый и полностью огороженный, ухоженный участок с декоративными и вечнозелёными хвойными растениями! Откатные ворота на въезде.
Относительная близость остановок общественного транспорта и маршруток. Близость необходимой инфраструктуры.
Подвоз учеников в учреждение образования- общеобразовательную школу агрогородка Тельмы-1 развозным школьным автобусом туда и обратно.
Код объекта 11125, лот 11125, договор 111/2 от 14.05.2025г.
Лицензия №02240/269 выдана МЮ РБ от 21 марта 2014 года
Жилой дом в нескольких минутах езды по М-1 и в 3 км от границы города Бреста. Современный коттеджный посёлок с необходимой инфраструктурой и близостью живописной природы.
На земельном участке 10 соток /в частной собственности/ расположен жилой дом 2008 года постройки.
Бунгало на ленточном монолитном фундаменте с полноценным цокольным этажом. Стены из газо-силикатных блоков "Забудова" отличного качества, толщиной 400мм, утеплены в системе Термошуба с нанесением декоративно-защитной отделочной штукатурки Короед. Окрашены стойкой к УФО и атмосферным воздействиям фасадной краской. Плиты перекрытий между цокольным и жилым этажом. Усиленные балки перекрытий и мощная стропильная система под кровлей из натуральной цементно-песчаной черепицы "Забудова". Эффектная шатровая кровля с врезкой. Окна ПВХ.
Лаконичная функциональная планировка дома. Кухня с переходом в зону отдыха - зал и выходом на террасу во внутренний дворик и на зелёную лужайку. Три просторные изолированные спальни. Совмещенный санузел с ванной и душкабиной. Качественные импортные отделочные материалы и современные технологии строительства: итальянская плитка, "венецианка", двери из массива, и много других "изюминок".
Возможность дополнительного обустройства мансардного этажа /утеплён,звукоизолирован/. В нижнем уровне достаточно места для размещения сауны, бассейна, комнаты отдыха и бильярдной.
Общая площадь строения с цокольным этажом 196,4 м2 / площадь жилого помещения дома 117,8 м2 / жилая 73,6 м2 / площадь кухни 14,6 м2.
Центральные инженерные коммуникации: электроснабжение 220/380 В, газ - в доме, отопление- двухконтурный газовый котёл "Виссманн", система водяных теплых полов в кухне, санузле и прихожей. Отапливаемый /при необходимости/ цокольный этаж. Скважина питьевой воды,/гидрофор. По улице - центральная вода. Автономная канализация с отличной дренажной системой. Центральная канализация по улице. Высокоскоростной оптоволоконный интернет от Белтелеком.
У дома беседка с местом для отдыха. Гараж на две машины с подъёмными воротами на электроприводе и хозблок- просторное помещение для хранения хозинвентаря- выполнены в общем стиле усадьбы.
Красивый и полностью огороженный, ухоженный участок с декоративными и вечнозелёными хвойными растениями! Откатные ворота на въезде.
Относительная близость остановок общественного транспорта и маршруток. Близость необходимой инфраструктуры.
Подвоз учеников в учреждение образования- общеобразовательную школу агрогородка Тельмы-1 развозным школьным автобусом туда и обратно.
Код объекта 11125, лот 11125, договор 111/2 от 14.05.2025г.
Лицензия №02240/269 выдана МЮ РБ от 21 марта 2014 года