Лот 50723: Мы работаем от собственника! Покупая этот объект- Вы не платите агентству комиссию!
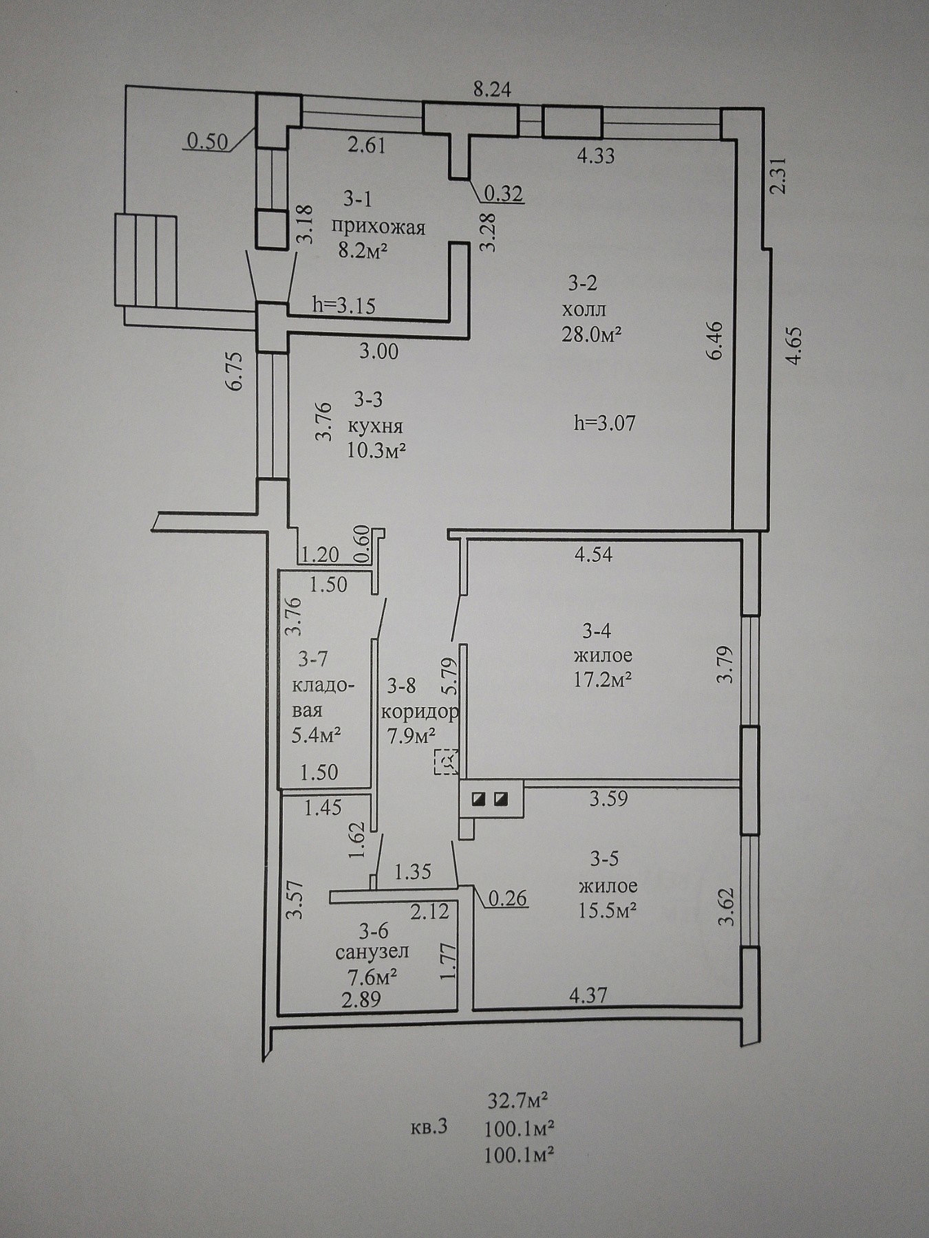
Предлагаем выделенную квартиру в блокированном жилом доме на 3 собственника/таунхаус/.
Объект расположен развитом районе старого Бреста - Граевка. Строение после реконструкции и капитального ремонта 2011 года с заменой электропроводки,труб водоснабжения и канализации.
Усиленный ленточный фундамент. Стены из строительного бруса, облицованы кирпичом. Деревянные балки перекрытий. Кровля-шифер. На мансардный этаж выведена основательная лестница. После дополнительных вложений в отделку это даст ещё 20-25 м2 полезной площади и большую изолированную комнату. Возможно также освоение чердачного помещения над старой частью дома.
Все комнаты квартиры расположены на Южной и Юго-Западной части дома. Много больших окон и естественного света. Огромный холл можно удачно зонировать. Мебелированная кухня, погреб, кладовая.
Центральные коммуникации: электроснабжение/ 220. Газ - магистральная подача, отопление и подогрев воды 2-х контурным газовым котлом Вайлант. Водоснабжение - центральный водопровод. Канализация - местная/ отлично выполненный дренаж, септик/. Высокоскоростной оптоволоконный интернет, телефонизация.
Земельный участок за собственником данного объекта 5,25 соток- 7/20 доли от 15 соток. Вся территория участка полностью огорожена. Имеется общий въезд с улицы. У каждого собственника свой гараж, уборная.
Идеальная локация объекта: остановки общественного транспорта в нескольких минутах ходьбы. Все необходимые объекты инфраструктуры: школы и детские сады, магазины, поликлиники, ж/д и автовокзал, центр города,- всё в шаговой доступности. Возможность быстро пропасть в любую точку на общественном транспорте.
Код объекта 50723, договор 507/2 от 19.12.2023г.
Лицензия №02240/269 выдана МЮ РБ от 21 марта 2014 год
Предлагаем выделенную квартиру в блокированном жилом доме на 3 собственника/таунхаус/.
Объект расположен развитом районе старого Бреста - Граевка. Строение после реконструкции и капитального ремонта 2011 года с заменой электропроводки,труб водоснабжения и канализации.
Усиленный ленточный фундамент. Стены из строительного бруса, облицованы кирпичом. Деревянные балки перекрытий. Кровля-шифер. На мансардный этаж выведена основательная лестница. После дополнительных вложений в отделку это даст ещё 20-25 м2 полезной площади и большую изолированную комнату. Возможно также освоение чердачного помещения над старой частью дома.
Все комнаты квартиры расположены на Южной и Юго-Западной части дома. Много больших окон и естественного света. Огромный холл можно удачно зонировать. Мебелированная кухня, погреб, кладовая.
Центральные коммуникации: электроснабжение/ 220. Газ - магистральная подача, отопление и подогрев воды 2-х контурным газовым котлом Вайлант. Водоснабжение - центральный водопровод. Канализация - местная/ отлично выполненный дренаж, септик/. Высокоскоростной оптоволоконный интернет, телефонизация.
Земельный участок за собственником данного объекта 5,25 соток- 7/20 доли от 15 соток. Вся территория участка полностью огорожена. Имеется общий въезд с улицы. У каждого собственника свой гараж, уборная.
Идеальная локация объекта: остановки общественного транспорта в нескольких минутах ходьбы. Все необходимые объекты инфраструктуры: школы и детские сады, магазины, поликлиники, ж/д и автовокзал, центр города,- всё в шаговой доступности. Возможность быстро пропасть в любую точку на общественном транспорте.
Код объекта 50723, договор 507/2 от 19.12.2023г.
Лицензия №02240/269 выдана МЮ РБ от 21 марта 2014 год