Код 24524: Мы работаем от собственника! Покупая этот объект- Вы не платите агентству комиссию!
Предлагаем жилой дом под отделку для круглогодичного проживания в 11 км от Бреста - СТ "Ветеран-3" .
Дачный дом на глубоком ленточном монолитном фундаменте с прочными несущими стенами из газо-силикатного блока. Монолитные перекрытия. Теплые окна ПВХ с энергосберегающими стеклопакетами . Наплавляемая плоская кровля с разуклонкой.
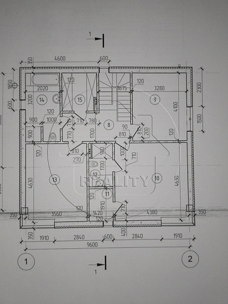
Лаконичная планировка: четыре большие комнаты и просторная кухня- гостиная с выходом на террасу, котельная и два совмещенных санузла, для удобства- на каждом этаже.
Инженерные коммуникации: электроснабжение 220/380В ; газ- в СТ по границе участка. Вода- скважина/ гидрофор, канализация- пока нет наружной, в доме разведена.
Два стандартных земельных участка 5,05 и 5,06 сотки полностью огорожены, подсыпаны. Рядом лес и пожарный водоём.
До остановки общественного транспорта с регулярными автобусными рейсами около километра. Есть возможность приехать - дизель-поездом региональных линий или маршрутным такси.
Код объекта 24524. Договор 245/2 от 28.08.2024, Лот 24524.
Лицензия №02240/269 выдана МЮ РБ от 21 марта 2014 года.
Предлагаем жилой дом под отделку для круглогодичного проживания в 11 км от Бреста - СТ "Ветеран-3" .
Дачный дом на глубоком ленточном монолитном фундаменте с прочными несущими стенами из газо-силикатного блока. Монолитные перекрытия. Теплые окна ПВХ с энергосберегающими стеклопакетами . Наплавляемая плоская кровля с разуклонкой.
Лаконичная планировка: четыре большие комнаты и просторная кухня- гостиная с выходом на террасу, котельная и два совмещенных санузла, для удобства- на каждом этаже.
Инженерные коммуникации: электроснабжение 220/380В ; газ- в СТ по границе участка. Вода- скважина/ гидрофор, канализация- пока нет наружной, в доме разведена.
Два стандартных земельных участка 5,05 и 5,06 сотки полностью огорожены, подсыпаны. Рядом лес и пожарный водоём.
До остановки общественного транспорта с регулярными автобусными рейсами около километра. Есть возможность приехать - дизель-поездом региональных линий или маршрутным такси.
Код объекта 24524. Договор 245/2 от 28.08.2024, Лот 24524.
Лицензия №02240/269 выдана МЮ РБ от 21 марта 2014 года.