Лот 25023 : Покупая этот объект Вы не платите агентству комиссию!
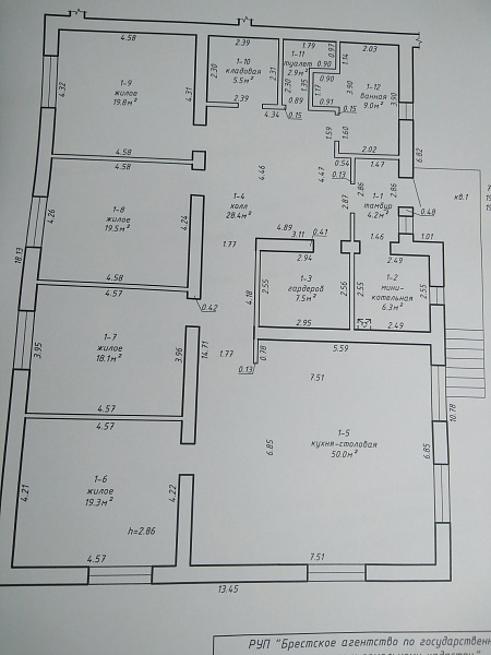
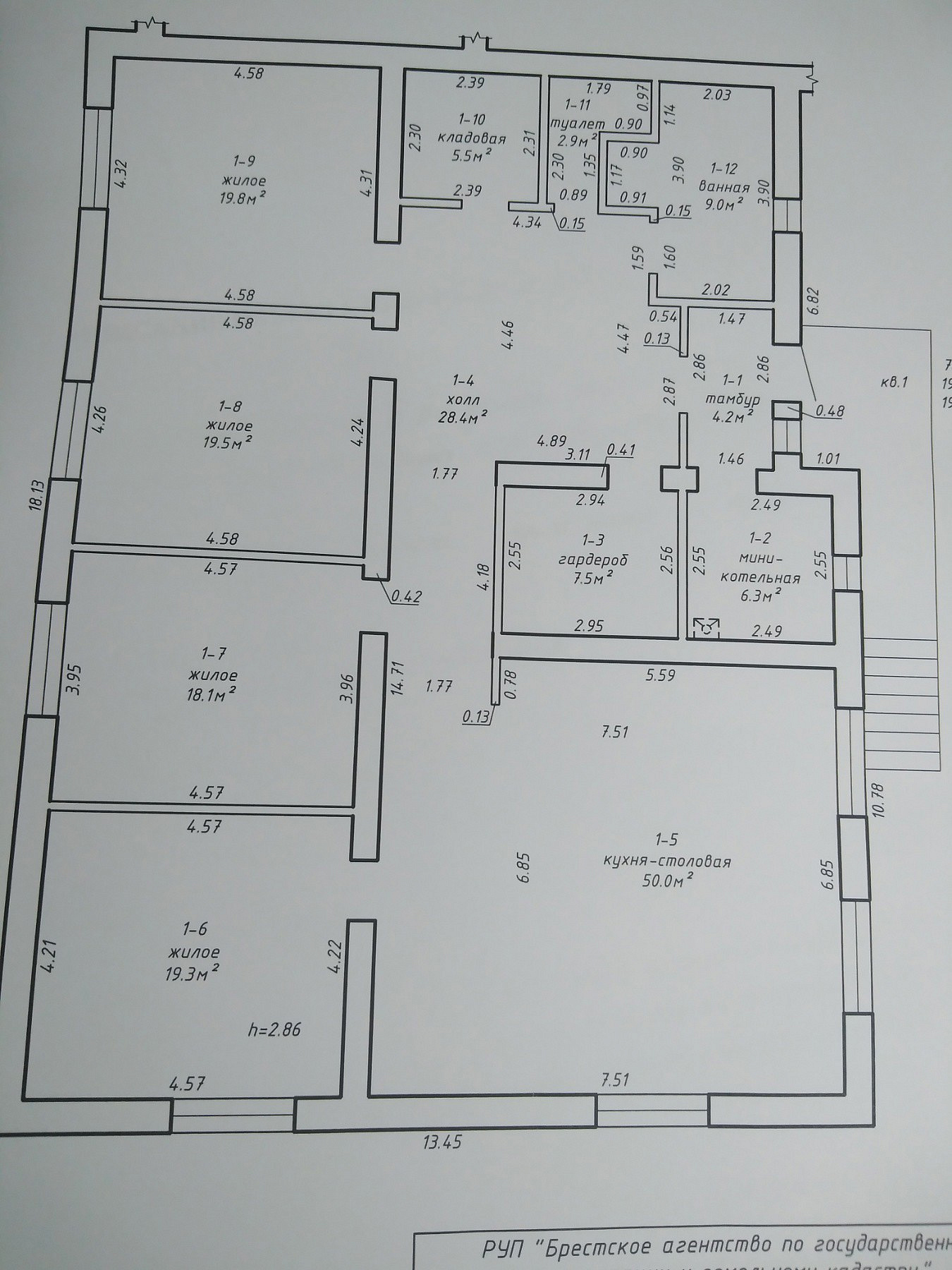
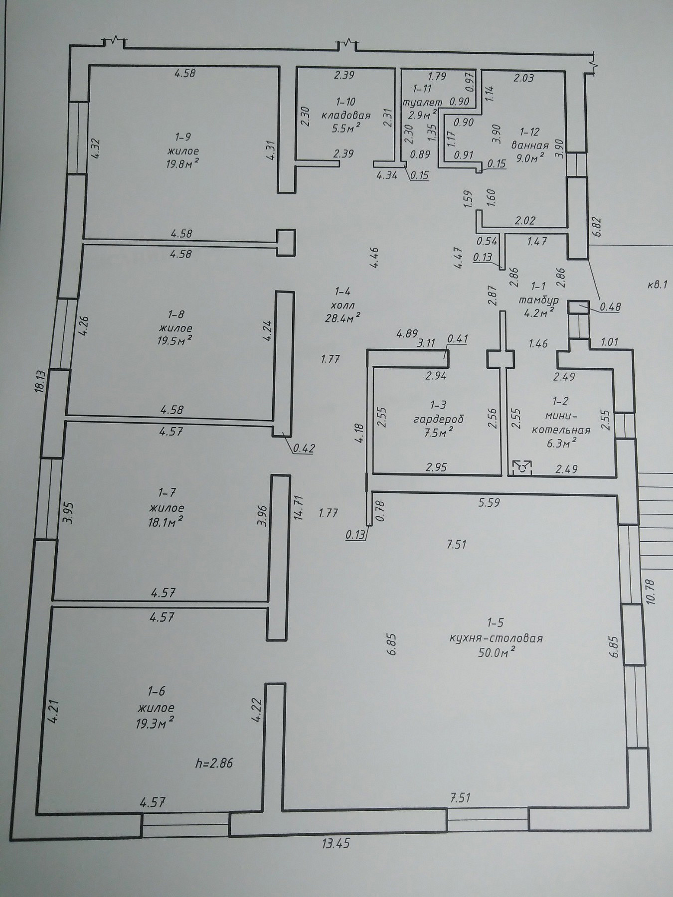
Предлагаем выделенную 5-комнатную квартиру в новом жилом доме на 2 семьи. Готовность под чистовую отделку: здесь Вы можете воплотить все свои фантазии и мечты!
Фундамент дома - ленточный, армированный бетон. Стены дома из блоков, утеплены ППТ, армированы фасадной сеткой. Нанесена декоративно-защитная шукатурка "Американка", с выкрасом фасада стойкой краской нейтрального тона. Кровля дома - качественная металлочерепица. Окна- ПВХ. При входе в квартиру лестничное ограждение оформлено ковкой. Перекрытия дома- железобетонные плиты с мощным утеплением "Пеноплексом" чердачного помещения/ есть лестница-люк и сохранён проём с возможностью установки стационарной лестницы и устройства жилой мансарды/.
В доме 4 большие комнаты + кухня-гостиная 50м2. Все коммуникации центральные, разведены по дому и работают: электроснабжение, газ, канализация и водоснабжение + колодец. Высокоскоростной оптоволоконный интернет. Отопление - газовый котёл с термоконтролем. Везде водяные тёплые полы, радиаторы отопления в спальнях.
Участок 15 соток ждёт заботливых рук новых владельцев. Достаточно много места и для декоративных растений и для посадки сада-огорода, устройства дорожек. На территории имеется гараж.
Отличное месторасположение дома: магазины, аптеки, детские сады, школы, отделение банка и многочисленные банкоматы, отделение связи, автобусные остановки и поликлиника,- всё в шаговой доступности. ТОРГУЕМСЯ! Звоните!
Код объекта 25023, договор 250/2 от 22.06.2023 г Лицензия №02240/269 выдана МЮ РБ от 21 марта 2014
Предлагаем выделенную 5-комнатную квартиру в новом жилом доме на 2 семьи. Готовность под чистовую отделку: здесь Вы можете воплотить все свои фантазии и мечты!
Фундамент дома - ленточный, армированный бетон. Стены дома из блоков, утеплены ППТ, армированы фасадной сеткой. Нанесена декоративно-защитная шукатурка "Американка", с выкрасом фасада стойкой краской нейтрального тона. Кровля дома - качественная металлочерепица. Окна- ПВХ. При входе в квартиру лестничное ограждение оформлено ковкой. Перекрытия дома- железобетонные плиты с мощным утеплением "Пеноплексом" чердачного помещения/ есть лестница-люк и сохранён проём с возможностью установки стационарной лестницы и устройства жилой мансарды/.
В доме 4 большие комнаты + кухня-гостиная 50м2. Все коммуникации центральные, разведены по дому и работают: электроснабжение, газ, канализация и водоснабжение + колодец. Высокоскоростной оптоволоконный интернет. Отопление - газовый котёл с термоконтролем. Везде водяные тёплые полы, радиаторы отопления в спальнях.
Участок 15 соток ждёт заботливых рук новых владельцев. Достаточно много места и для декоративных растений и для посадки сада-огорода, устройства дорожек. На территории имеется гараж.
Отличное месторасположение дома: магазины, аптеки, детские сады, школы, отделение банка и многочисленные банкоматы, отделение связи, автобусные остановки и поликлиника,- всё в шаговой доступности. ТОРГУЕМСЯ! Звоните!
Код объекта 25023, договор 250/2 от 22.06.2023 г Лицензия №02240/269 выдана МЮ РБ от 21 марта 2014