Объект

Брестская область, Брестский район, Брест, Центр, Комсомольская
Тип объявления Продажа
Количество комнат 3
Район Центр
Код объекта 06626
Этаж 5
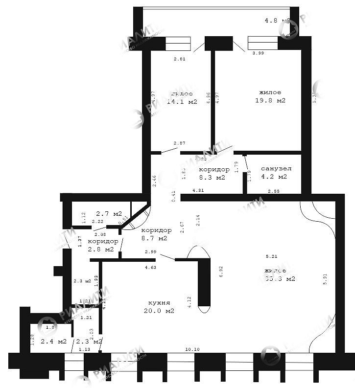
Общая площадь 127.7 м2
Этажность 5
Санузел 2
Ремонт Дизайнерский
Тип дома кирпичный
Год постройки дома 2008
 

Мы работаем от собственника! Покупая этот объект, Вы не платите агентству комиссию! Отличное предложение! В историческом центре г. Бреста продается  3-х комнатная квартира  улучшенной планировки с сауной! Квартира площадью  127,7/ 122,9/69,2/20 м2 находится на  5 этаже  пятиэтажного  кирпичного дома 2008 года постройки. Дом с лифтом! В квартире функционально расположены:    просторная гостиная  35,3 м2 с камином, которая объединена в единое пространство с  20-метровой  кухней. Далее две изолированные  спальные комнаты с общей застекленной лоджией, также имеется  обустроенная  гардеробная, два санузла и сауна. В квартире сделан качественный  ремонт. Идеально подобраны  элементы декора, уютную обстановку зала создает камин в ее центральной части. Стиль и рациональность  - вот составляющие    внутреннего  пространства квартиры . Потолки многоуровневые глянцевые  с  разноплановой системой освещения, стены- декоративная покраска с элементами  каменной кладки и обои,. В зале красивая настенная  художественная  роспись.  Полы ламинат и плитка. Окна ПВХ с широкими подоконниками. Два санузла, один из  которых с джакузи , облицованы современной  керамической  плиткой. Заменены все сантехнические трубы и полотенцесушитель. Просторная кухня  20 м2 с барной стойкой, полностью укомплектована всеми необходимыми бытовыми приборами. Изюминка данной квартиры-  сауна с электрической печью и   душевой. Отличное предложение для  комфортного  и удобного проживания в центральной части г. Бреста на улице Комсомольской , в шаговой доступности от красивой парковой зоны отдыха  с прудом   и  развлечениями на любой вкус.  Вся необходимая инфраструктура представлена в полном объёме.
Код объекта 06626
Договор №066/2 от 18.03.2026.
Лицензия №02240/269 выдана МЮ РБ от 21 марта 2014 года.

Ваш персональный менеджер

Если у вас появились вопросы, напишите нам!