Мы работаем от собственника! Покупая этот объект, ПОКУПАТЕЛЬ не платит агентству комиссию.
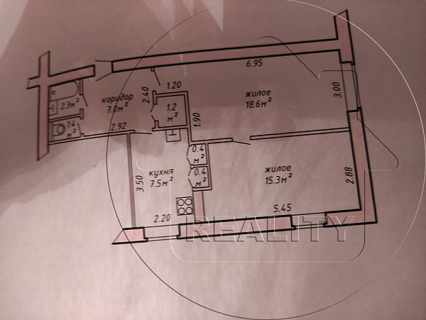
Предлагаем купить просторную 2-х комнатную квартиру в центральной части города по ул. Буденного 1926 г. п. 3/3 этажного кирпичного дома. Общая площадь по СНБ – 54,1 кв. м, общая – 54,1 кв. м., жилая – 33,9 кв. м, кухня – 7,5 кв. м. с раздельным санузлом и высокими потолками 2,95м. Имеется кладовая. Скатная крыша (имеется технический этаж).
Квартира в аккуратном жилом состоянии: окна ПВХ, стены оклеены обоями, потолки в комнатах вагонка из дуба, остальные помещения снежка, на полу доска покрытая лаком, межкомнатные двери массив дуба, входная дверь двойная – наружная металлическая, внутренняя массив дуба. Санузел облицован современной плиткой. В квартире была произведена замена сантехнических труб и сантехники.
Хороший вариант покупки жилья в центе города.
Доброжелательные соседи, благоустроенный двор с парковкой для автомобилей. Удобное месторасположение: рядом остановки общественного транспорта, магазины, детский сад, кафе, кинотеатр, рядом с домом школа №20, 7 минуты до колхозного рынка, 5 минут до ЦУМа, рядом пешеходная улица Советская, хорошая транспортная развязка.
Код объекта 30424
Договор № 304/2 от 06.11.2024г.
Лицензия №02240/269 выдана МЮ РБ от 21 марта 2014 года.
Предлагаем купить просторную 2-х комнатную квартиру в центральной части города по ул. Буденного 1926 г. п. 3/3 этажного кирпичного дома. Общая площадь по СНБ – 54,1 кв. м, общая – 54,1 кв. м., жилая – 33,9 кв. м, кухня – 7,5 кв. м. с раздельным санузлом и высокими потолками 2,95м. Имеется кладовая. Скатная крыша (имеется технический этаж).
Квартира в аккуратном жилом состоянии: окна ПВХ, стены оклеены обоями, потолки в комнатах вагонка из дуба, остальные помещения снежка, на полу доска покрытая лаком, межкомнатные двери массив дуба, входная дверь двойная – наружная металлическая, внутренняя массив дуба. Санузел облицован современной плиткой. В квартире была произведена замена сантехнических труб и сантехники.
Хороший вариант покупки жилья в центе города.
Доброжелательные соседи, благоустроенный двор с парковкой для автомобилей. Удобное месторасположение: рядом остановки общественного транспорта, магазины, детский сад, кафе, кинотеатр, рядом с домом школа №20, 7 минуты до колхозного рынка, 5 минут до ЦУМа, рядом пешеходная улица Советская, хорошая транспортная развязка.
Код объекта 30424
Договор № 304/2 от 06.11.2024г.
Лицензия №02240/269 выдана МЮ РБ от 21 марта 2014 года.