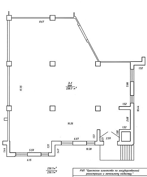
Продам Изолированное помещение с отдельным входом, площадь 230,7 кв.м., г. Брест, ул. Коммерческая, 7 (1 этаж), микрорайон Задворцы.
Назначение – Помещение, не установленного назначения.
Центральные коммуникации, автономная котельная на газу, раздельный санузел.
Удобные подъездные пути, асфальт, рядом территория "Атлант-М" и строительный рынок "Вам рад".
Стоимость объекта 97000 дол. НДС нет.
Узнавайте первыми о продаже коммерческой недвижимости в Бресте! Подписывайтесь на наш телеграмм-канал: prodambre
Договор №405/2 от 19.09.2023 года
Лицензия №02240/269 выдана МЮ РБ от 21 марта 2014 года.
УНП: 291267309
+375333990772 (Viber, Telegram, WhatsApp)
эл. почта: anreal002@mail.ru
Назначение – Помещение, не установленного назначения.
Центральные коммуникации, автономная котельная на газу, раздельный санузел.
Удобные подъездные пути, асфальт, рядом территория "Атлант-М" и строительный рынок "Вам рад".
Стоимость объекта 97000 дол. НДС нет.
Узнавайте первыми о продаже коммерческой недвижимости в Бресте! Подписывайтесь на наш телеграмм-канал: prodambre
Договор №405/2 от 19.09.2023 года
Лицензия №02240/269 выдана МЮ РБ от 21 марта 2014 года.
УНП: 291267309
+375333990772 (Viber, Telegram, WhatsApp)
эл. почта: anreal002@mail.ru