Продам Здание, г. Брест, ул. Коммерческая, 7/1.
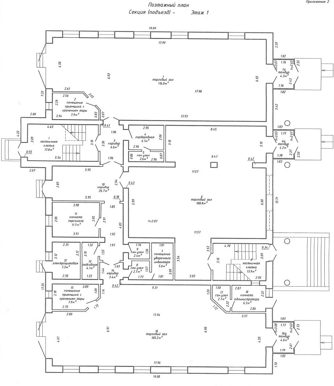
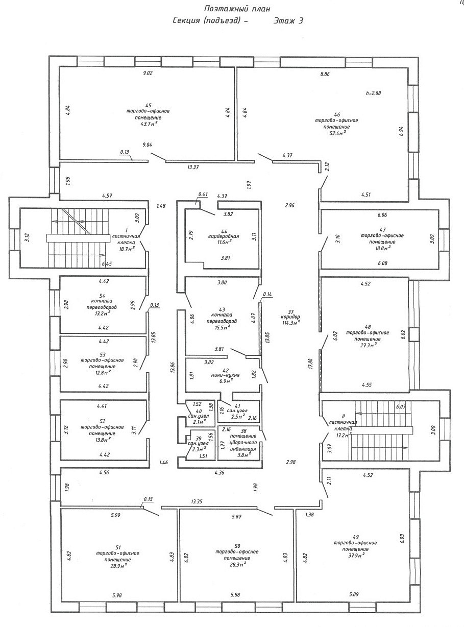
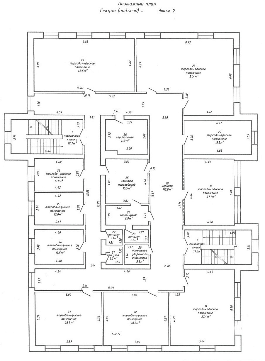
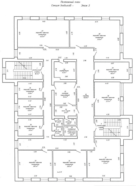
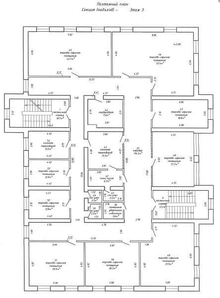
Общая площадь 1445,0 кв.м., назначение – Здание многофункциональное, наименование – Специализированный магазин с надстроенными торгово-офисными помещениями. На 1-м этаже расположены торговые площади, есть возможность выкупить отдельно.
Здание расположено на земельном участке, площадь 0,26 га, год постройки 2020.
Надстроенная крышная газовая котельная. На территории своя автостоянка. Территория огорожена забором. С тыльной стороны здания имеется площадка для стоянки грузового автотранспорта. С фасадной стороны - возможно расположение образцов товара. Место оживленное, в нескольких метрах находятся "Атлант-М", строительный рынок и магазин "Вам Рад". Возможна продажа в рассрочу по договоренности.
Вид конструкции здания – бескаркасная, фундамент – бетон, стены наружные – блоки газосиликатные/облицованы керамическим кирпичом, внутренние – кирпич силикатный/керамический, внутренняя отделка – облицовано керамической плиткой/оштукатурено и окрашено, перекрытия – ж/б плиты, кровля – рулонная совмещенная, полы – плитка/линолеум, окна – ПВХ профиль, двери – МДФ/металл/алюминиевый профиль/ПВХ профиль/дерево, ворота металлические, электроснабжение – централизованная система, отопление – котел газовый/автономное, холодное водоснабжение – централизованная система, горячее водоснабжение – автономная система, канализация – автономная система, умывальник (раковина)/унитаз/мойка, вентиляция – с естественным побуждением, противопожарная система, телефонизация, крыльцо, наружная лестница.
Возможно использование для организации торговли, производства, складов.
Высокий трафик, удобные подъездные пути, асфальт, рядом территория "Атлант-М" и строительный рынок "Вам рад".
Стоимость продажи 795000 дол., НДС нет. Рассрочка платежа
Также рассматривается частичная продажа поэтажно: 1-й этаж 800 дол. кв.м./2-й этаж 700 дол. кв.м./3-й этаж 600 дол. кв.м.
Договор №414/2 от 19.09.2023 года
Лицензия №02240/269 выдана МЮ РБ от 21 марта 2014 года.
УНП: 291267309
+375333990772 (Viber, Telegram, WhatsApp)
эл. почта: anreal002@mail.ru
Официальный сайт https://reality.by/
Общая площадь 1445,0 кв.м., назначение – Здание многофункциональное, наименование – Специализированный магазин с надстроенными торгово-офисными помещениями. На 1-м этаже расположены торговые площади, есть возможность выкупить отдельно.
Здание расположено на земельном участке, площадь 0,26 га, год постройки 2020.
Надстроенная крышная газовая котельная. На территории своя автостоянка. Территория огорожена забором. С тыльной стороны здания имеется площадка для стоянки грузового автотранспорта. С фасадной стороны - возможно расположение образцов товара. Место оживленное, в нескольких метрах находятся "Атлант-М", строительный рынок и магазин "Вам Рад". Возможна продажа в рассрочу по договоренности.
Вид конструкции здания – бескаркасная, фундамент – бетон, стены наружные – блоки газосиликатные/облицованы керамическим кирпичом, внутренние – кирпич силикатный/керамический, внутренняя отделка – облицовано керамической плиткой/оштукатурено и окрашено, перекрытия – ж/б плиты, кровля – рулонная совмещенная, полы – плитка/линолеум, окна – ПВХ профиль, двери – МДФ/металл/алюминиевый профиль/ПВХ профиль/дерево, ворота металлические, электроснабжение – централизованная система, отопление – котел газовый/автономное, холодное водоснабжение – централизованная система, горячее водоснабжение – автономная система, канализация – автономная система, умывальник (раковина)/унитаз/мойка, вентиляция – с естественным побуждением, противопожарная система, телефонизация, крыльцо, наружная лестница.
Возможно использование для организации торговли, производства, складов.
Высокий трафик, удобные подъездные пути, асфальт, рядом территория "Атлант-М" и строительный рынок "Вам рад".
Стоимость продажи 795000 дол., НДС нет. Рассрочка платежа
Также рассматривается частичная продажа поэтажно: 1-й этаж 800 дол. кв.м./2-й этаж 700 дол. кв.м./3-й этаж 600 дол. кв.м.
Договор №414/2 от 19.09.2023 года
Лицензия №02240/269 выдана МЮ РБ от 21 марта 2014 года.
УНП: 291267309
+375333990772 (Viber, Telegram, WhatsApp)
эл. почта: anreal002@mail.ru
Официальный сайт https://reality.by/