Продам Производственно-складскую базу в Бресте, ул. Шоссейная 2, м-н Граевка.
Назначение - Здание специализированное складов, торговых баз, баз материально -технического снабжения, хранилищ (бывшая металлобаза).
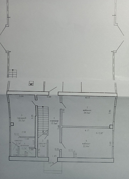
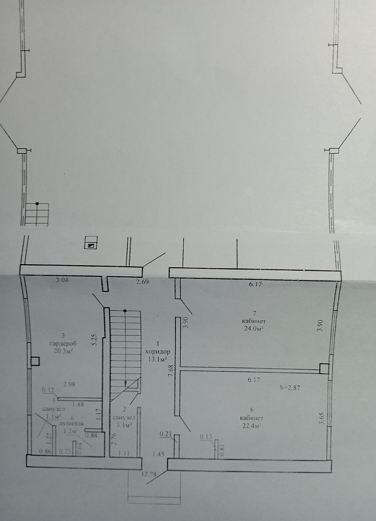
Общая площадь 676,2 кв.м., в т.ч. склад 494,2 кв.м. и двухэтажный офисный блок 182 кв.м. (мебель, 3 кондиционера)
Расположена на земельном участке общей площадью 0,6843 га. (праве постоянного пользования).
Фундамент – ж/б блоки фундаментные; наружные стены – кирпичные; внутренние стены – кирпичные; перекрытия – плиты ж/б; кровля – металлическая; полы – бетонные/плитка, окна – ПВХ профиль; двери/ворота – металлические/дерево; отделка – оштукатурено/окрашено;
Отопление – твердотопливный котел (рядом газ); водопровод – скважина (бойлер 1м3); канализация – местная; электроснабжение – скрытая электропроводка 220/380В, максимальная разрешенная нагрузка 20 кВт; вентиляция – естественная; раздельных два санузла, интернет оптоволокно; система охранной сигнализации, ограждение по периметру территории - бетонный забор, видеонаблюдение; въездные ворота - металл.
Благоустроенная территория (брусчатка), удобные асфальтированные подъездные пути
Козловой кран грузоподъемность 5т (длина ж/д путей 55м)
Оборудован пост газовой резки
Дополнительно 6 боксов/навес для хранения продукции, ячейки дляхранения металла с крышками
Стоимость 1270000 руб., в том числе НДС.
Узнавайте первыми о ПРОДАЖЕ коммерческой недвижимости в Бресте!
Подписывайтесь наш телеграмм-канал: prodambre
Договор № 207/2 от 31.10.2025
Лицензия №02240/269 выдана МЮ РБ от 21 марта 2014 года.
УНП: 291267309.
Официальный сайт: https://reality.by/
Назначение - Здание специализированное складов, торговых баз, баз материально -технического снабжения, хранилищ (бывшая металлобаза).
Общая площадь 676,2 кв.м., в т.ч. склад 494,2 кв.м. и двухэтажный офисный блок 182 кв.м. (мебель, 3 кондиционера)
Расположена на земельном участке общей площадью 0,6843 га. (праве постоянного пользования).
Фундамент – ж/б блоки фундаментные; наружные стены – кирпичные; внутренние стены – кирпичные; перекрытия – плиты ж/б; кровля – металлическая; полы – бетонные/плитка, окна – ПВХ профиль; двери/ворота – металлические/дерево; отделка – оштукатурено/окрашено;
Отопление – твердотопливный котел (рядом газ); водопровод – скважина (бойлер 1м3); канализация – местная; электроснабжение – скрытая электропроводка 220/380В, максимальная разрешенная нагрузка 20 кВт; вентиляция – естественная; раздельных два санузла, интернет оптоволокно; система охранной сигнализации, ограждение по периметру территории - бетонный забор, видеонаблюдение; въездные ворота - металл.
Благоустроенная территория (брусчатка), удобные асфальтированные подъездные пути
Козловой кран грузоподъемность 5т (длина ж/д путей 55м)
Оборудован пост газовой резки
Дополнительно 6 боксов/навес для хранения продукции, ячейки дляхранения металла с крышками
Стоимость 1270000 руб., в том числе НДС.
Узнавайте первыми о ПРОДАЖЕ коммерческой недвижимости в Бресте!
Подписывайтесь наш телеграмм-канал: prodambre
Договор № 207/2 от 31.10.2025
Лицензия №02240/269 выдана МЮ РБ от 21 марта 2014 года.
УНП: 291267309.
Официальный сайт: https://reality.by/